214 S State Street, Jerseyville, IL 62052

$110,000
  • 214 S State Street, Jerseyville, IL 62052 Main Photo

45 Total Photos [Click to View All]

Active
MLS#25073718
STATUSActive PROPERTY TYPECommercial - SUBDIVISIONNot in a subdivision

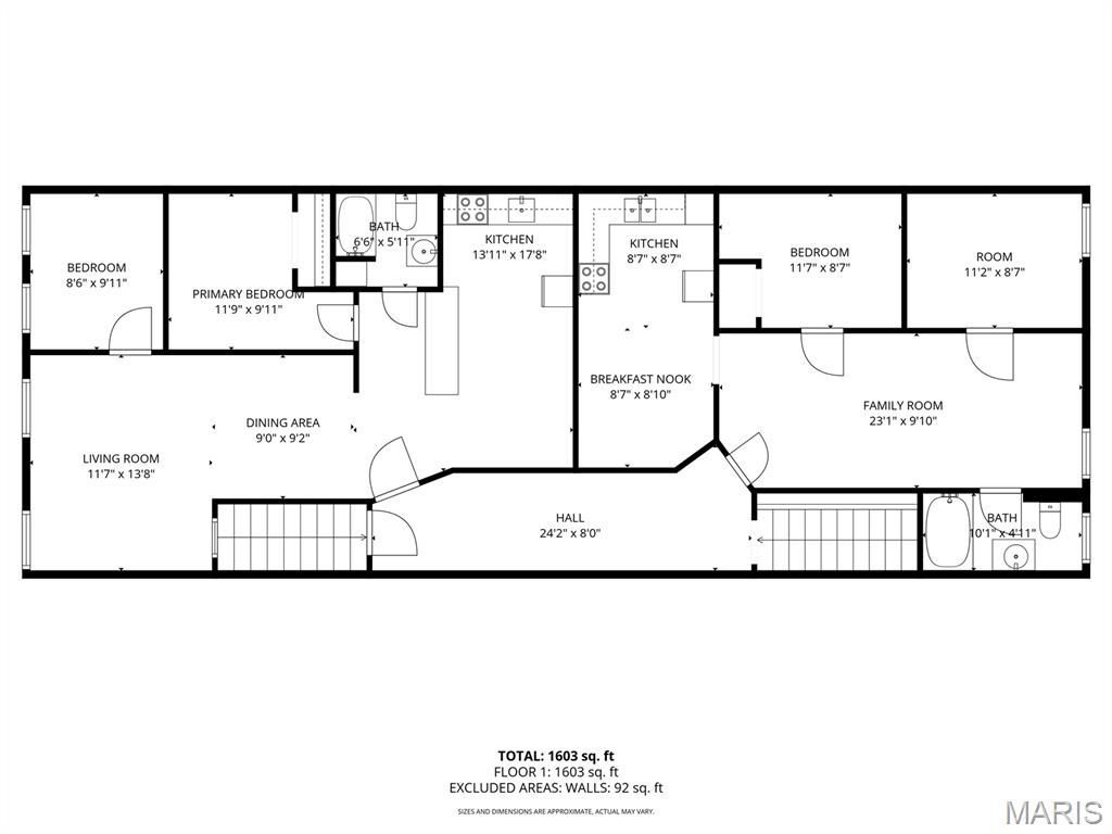
Property Description

This well-located building offers incredible visibility and steady foot traffic, making it ideal for a variety of business ventures. Conveniently situated near all local amenities, this property features two updated upstairs apartments, perfect for generating additional income. A new roof provides peace of mind and years of low-maintenance ownership.Currently bringing in $1,860 per month, this income-producing property is ready for its next owner to step in and start earning immediately. Property is being sold as-is. Call today to schedule your private showing and see the potential for yourself!

214 S State Street | MLS# 25073718

This commercial property located at 214 S State Street, Jerseyville, IL 62052 is currently listed for sale with an asking price of $110,000. Search Jerseyville real estate on www.strano.com today.

Property Features

Property Type: Commercial -
Cooling: Central Air, Wall/Window Unit(s)
Heating: Forced Air
Lot Size: 0.06 Acres
Taxes: $2,321
Year Built: 1890

Feature Descriptions

Appliances: Oven, Refrigerator
Current Use: Mixed Use
Days on Site: 120
Electric: Ameren
Exterior: Brick
Parcel#: 04-759-004-50
Road Frontage: City Street
Road Surface: Paved
Water: Public

Listed By / Shown By

Listed By

Agency Name: Market Pro Realty, Inc

Shown By

Agency Title: Strano & Associates
Agency Phone: 618-277-7653

IDX logo

Login to My Homefinder

Pixel